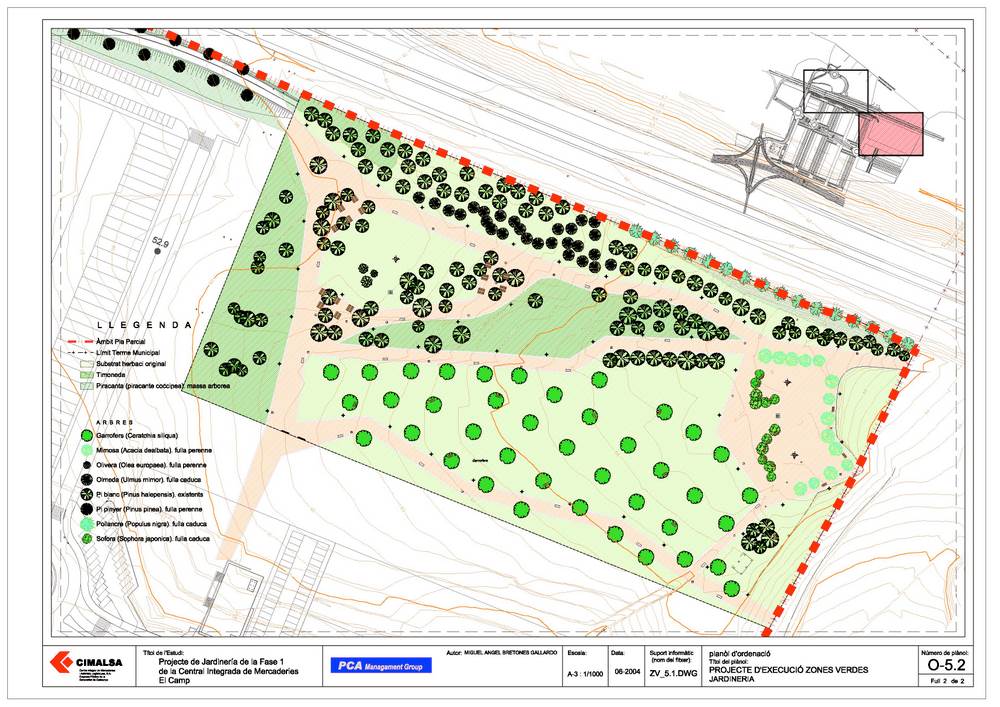
PROYECTO DE LA JARDINERIA DE LA FASE 1 DEL CIM EL CAMP

Datos/Dados
 

Emplazamiento / Emplaçament / Localização: El Camp ( Tarragona-Reus)

Fecha / Data: 2004